본문 바로가기

건축/건축 구조

건축적 표현 방법

반응형

 

 

건축 설계시 다양한 표현 방법이 있습니다.

 

중정, 스킵플로어, 보이드, 솔리드, 파사드 등 다양한 건축적 표현에 대해 알아보겠습니다.

 

 

 

 

먼저 중정은 건물의 한 가운데 또는 변두리 등에 건물을 비워둠으로써 정원을 들이는 방식입니다.

 

자연스럽게 건물의 한가운데 위치하여 프라이버시에 좋고 자연을 받아들 일 수 있는 장점이 있습니다.

 

또한 건물이 비워짐으로인해 건폐율 등에서 조금 더 활용할 수 있는 방법입니다.

 

 

 

 

 

대표적인 건물들로는 안도 다다오의 스미요시 하우스가 있습니다.

 

극단적인 예시지만, 중정을 통해 공간적 한계에 대한 문제점들을 해결한 모습입니다.

 

 

한정된 대지안에 충분한 공간이 요구되기에 건폐율과 프라이버시, 풍부한 공간을

 

한번에 해결하기에 중정만이 유일한 해답이였을 겁니다.

 

 

 

 

 

 

 

 

 

 

 

 

 

 

 

보이드는 비운다라는 뜻이죠. 건물의 측면 또는 사선 등 다양한 방법으로 매스를 덜어내거나 채우는 걸 뜻 합니다.

 

이 경우 일부를 덜어낼 수도 있고 모든 부분을 관통할 수도 있고 다양한 표현 방법이 존재합니다.

 

 

아모레퍼시픽 본사의 경우가 대표적인 예시로 보이드와 솔리드를 동시에 활용한 건물이라고 볼 수 있습니다.

 

건물을 사면체로 채우고 난 다음에 부분을 비움으로써, 

 

단아하고 간결한 형태를 갖춘 단 하나의 커다란 볼륨을 가진 건축물이 완성된 모습입니다.

 

 

 

 

 

 

 

또 다른 예시로 안도 다다오의 폴리 대극장의 경우 관통이 그대로 나타납니다.

 

이 건물 또한 마찬가지로 사면체로 건물을 올리고 관통을 이용하여 설계가 되었습니다.

 

관통은 보이드의 일종의 한 방법으로 볼 수 있겠습니다.

 

 

 

 

 

 

 

 

 

 

 

 

 

 

 

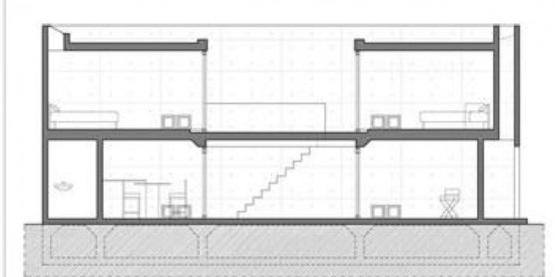
스킵플로어는 건축의 레벨을 다양하게 이용하는 방법입니다.

 

건물의 반층 반층씩 레벨을 다르게하여 공간에 연속된 흐름을 가져다 주는 것입니다.

 

 

스킵플로어에서 계단은 층이 분리되는 역활보다는 층의 연결이라는 의미가 더 가깝습니다.

 

또한 계단의 공간을 의자라던가 수납 등 다양하게도 활용 가능하기도 합니다.

 

 

일반적으로 좁은 공간에서 계단의 공간을 활용하고자 이용이 많이 되며,

 

소통이 중요하게 작용하는 오피스나 대지의 레벨이 다채로운 곳에서 이용이 됩니다.

 

 

 

 

 

 

 

 

 

 

 

 

 

 

파사드란 건물의 입면을 구성하는 면을 말하며, 건축 입면의 양식과 패턴, 그리드 등 표면을 뜻합니다.

 

NC 소프트 사옥과 아모레퍼시픽 사옥을 예시로 가져왔습니다.

 

 

 

NC 소프트 사옥의 경우 특정한 패턴을 표현화 한 것으로,

 

한국 고건축에서 찾아볼 수 있는 창살, 기단석, 문양 등을 현대식 빌딩 입면에 형상화한 것이라고 합니다.

 

 

앞서 살펴본 아모레 퍼시픽은 한국 고유의 달항아리의 아름다운을 연상케하기 위해,

 

건물 외벽에 백색 핀을 2만 1511개를 둘렀다고 합니다.

 

여기서 핀은 알루미늄 루버로 햇빚 가리개의 역활을 하여, 에너지 절감의 용도로도 계획되었습니다.

 

 

 

 

 

 

 

 

 

 

 

 

 

 

 

 

더블 스킨은 건물의 외피에 또 다른 외피를 입히는 방법입니다.

 

주로 햇빛을 걸러주는 에너지 효율 증대의 목적으로 사용되지만,

 

흔치않게 외관 디자인의 목적 또는 구조적 목적 등으로 사용이 됩니다.

 

 

패널을 연결한 경우 햇빛 차단이나 프라이버시 등을 활용한 예시이고 

 

유리를 이중 접합한 경우, 에너지 효율 증대를 위한 쓰임입니다.

 

두번째 사진의 경우 원형의 구조체를 외벽에 둠으로써 내부에 기둥을 없앨 수 있었다고 합니다.

 

 

 

 

 

 

 

 

 

 

 

 

 

이외에도 형상화를 이용한 건축이 있습니다.

 

특정 형태를 그대로 건물로 구현한 것으로 마치 예술 작품을 연상시키는 형태와 곡선을 가졌습니다

 

자하하디드의 곡선 건축이 형상화를 매우 잘 활용한 건물로 볼 수 있습니다.

 

 

 

 

 

 

 

 

지금까지 건축을 표현하는 방법에 대해 포괄적으로 알아봤습니다.

 

 

건물은 인간이 표현할 수 있는 가장 큰 형태라고 볼 수 있습니다.

 

그러나 단순한 예술적 표현 가치보다는, 생활적 및 쓰임적 가치가 더욱 크다고 생각됩니다.

 

 

각 표현방법들은 맹목적으로 사용되기보다,

 

대지와 건물의 상황에 따라 맥락적으로 사용되는 것이 가장 바람직한 설계라고 할 수 있습니다.

 

 

 

 

반응형

'건축 > 건축 구조' 카테고리의 다른 글

가볍지만 견고한 구조, 텐세그리티  (0) 2019.01.23